Victorian mill buildings were the icons of industry in Belfast. Our take on the mill building is ‘North’, an exemplar international standard office building, thoughtfully designed to meet modern expectations in a manner sympathetic to the trading history of the area.
The largest of the four buildings on the Smithfield site, North offers approximately 10,378 sq m (111,707 sq ft) of Grade A office accommodation arranged over 8 upper floors with roof terraces, cycle storage and shower facilities.
The unique design is apparent from the moment you set foot in the spacious reception that creates an immediate impact and sense of arrival. The foyer design allows access through the North building in an arcade arrangement which links to The Yard, increasing permeability across the site. This arrangement, with potential for internally accessible retail / café use offers a great amenity for occupiers.
The North building is a steel framed building clad in a combination of brick and precast reconstituted stone. With 50% clear glazing, the scheme provides excellent natural light and a robust thermal insulation resulting in a low energy building required of BREEAM Excellent.
External roof terrace spaces with appropriate wind shelters and glazing are distributed across the development providing opportunities to occupy private external space, offering occupiers the opportunity to break from their desks, engage with colleagues and take in some fresh air.
The double height reception space creates an immediate impact and sense of arrival.
The ground floor level will be animated by maker spaces, independent retailers and cafes, bringing the unique vibrancy of the surrounding streets into the lobby.
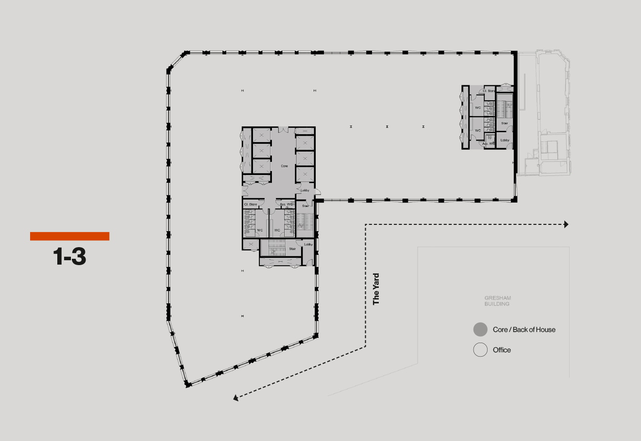
The offices provide a maximum floor-plate, articulated across two elevations and offering 1,668 sq m (17,954 sq ft) at levels 1 to 3, stepping back to a single-elevation of 792 sq m (8,525 sq ft) on floors 6 to 8.
North’s stepped form softens its impact on the cityscape; coupled with its brickwork façade it offers a subtle, modern take on a traditional historical form with a colour palette that blends effortlessly with Belfast’s skyline.
Beneath the surface, everything that is expected from a modern office is delivered in a readily recognisable form, embracing exposed services to maximise the height and ambience within the floors.
The upper floors will offer unparalleled views of Black Mountain and Cavehill on the Northern boundary of Belfast.
The interiors of the building in terms of aesthetics, mechanical, electrical and IT infrastructure fully align to Grade A office requirements for the 21st century. Arranged to a 1.5 metre grid with raised access floors, the spaces can be efficiently designed and benefit from BCO compliant ceiling heights at 2.85 meters to further enhance the sense of openness, providing excellent natural light distribution and visual connectivity to the city and surrounding environment.
North also provides a rare elevated city roof terrace at 4th floor level. This sanctuary is accessible from the office accommodation and will be a welcome addition to the work-life experience sought after by today’s workforce. It could be the perfect location for staff to eat, exercise, socialise and relax, overlooking the hustle and bustle of the city streets below.
Design Features
- Large efficient floor plates available up to 17,954 sq ft
- Flexible floor plate with natural sub-division from 8,525 sq ft
- Raised Access Floor with 150mm clear zone
- Planning Grid 1.5m x 1.5m
- MVHR with VRF Cooling providing flexibility for CAT B fitout
- Design based on 1:8 m2 occupancy
- 66 bicycle spaces
- 8 showers
- 69 lockers
Ceiling Heights
- Slab to slab 3,850mm
- Floor to Ceiling - 2,850 (Underside of Beam) 2,800 w Ceiling
Lift Provision
- 5 lifts including 1 goods lift
- 1 fire fighting lift providing additional capacity
- Travel and waiting times to British Council for Offices best practice
IT Provision
- Wired Scored Platinum
Sustainability + Resilience
- BREEAM Excellent
- Equipped with full sprinkler system
- Back-up Generators
Design Methodology
- BIM Level 2
Schedule of Accommodation / sq ft
| Floor NIA | Offices | Retail | Total |
|---|---|---|---|
| Ground Floor | 0 | 6,340 | 6,340 |
| 1st Floor | 17,890 | 0 | 17,890 |
| 2nd Floor | 17,954 | 0 | 17,954 |
| 3rd Floor | 17,954 | 0 | 17,954 |
| 4th Floor | 16,167 | 0 | 16,167 |
| 5th Floor | 16,167 | 0 | 16,167 |
| 6th Floor | 8,525 | 0 | 8,525 |
| 7th Floor | 8,525 | 0 | 8,525 |
| 8th Floor | 8,525 | 0 | 8,525 |
| Total | 111,707 | 6,430 | 118,047 |





